New Road, North Walsham
4 Bedrooms
2 Bathrooms
1 Receptions
£380,000 Offers Over
For Sale
This absolutely stunning property is a " Must See " with a Mediterranean feel to it. The property is nestled in a quiet location but only a short walk from the quaint market town of North Walsham. The propriety is within has easy access to The broads, Norwich City and the beautiful coastal towns of |Cromer and beyond.
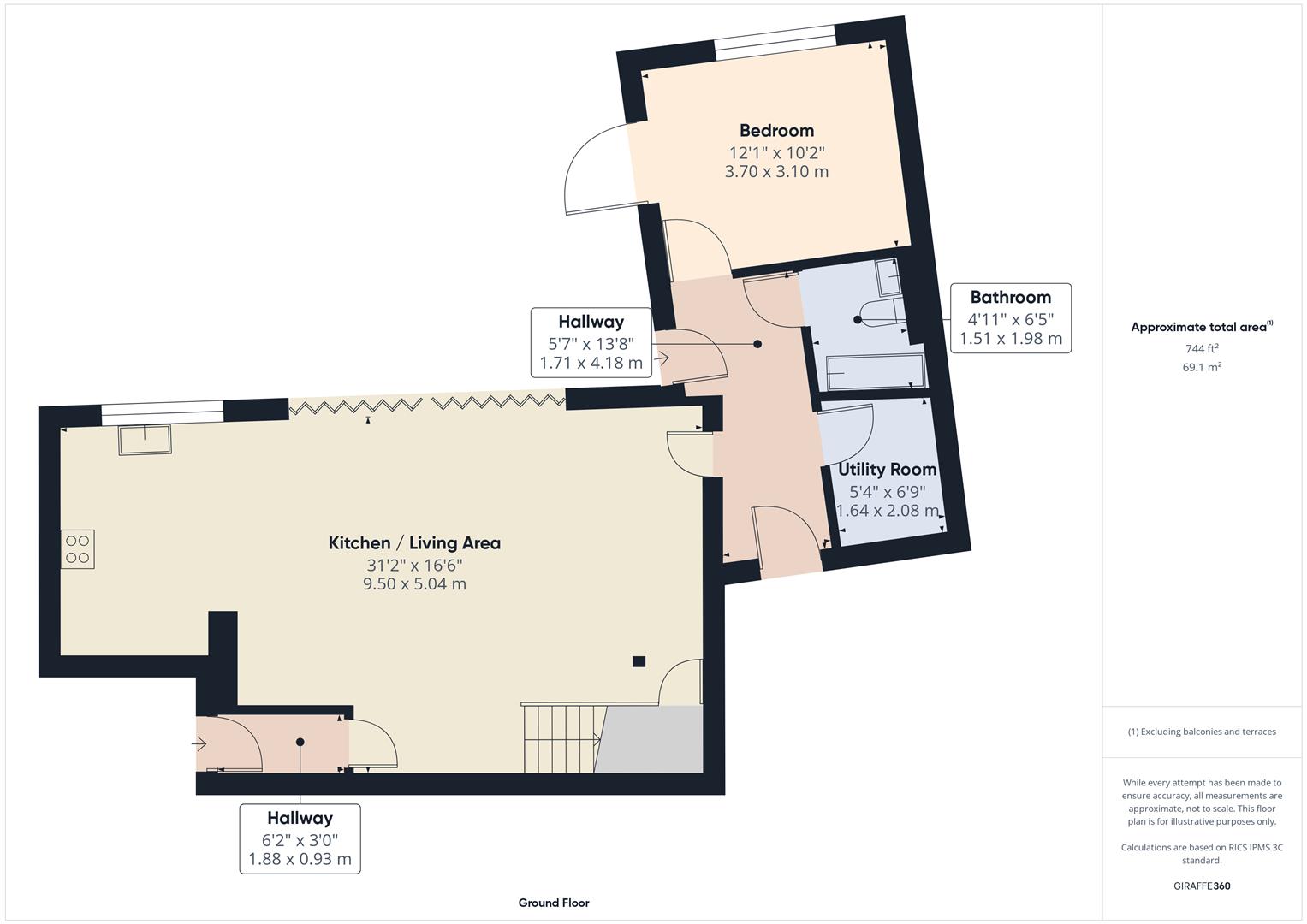
The property consists of four bedrooms two bathrooms and an ensuite. There is a lovely spacious open plan kitchen diner, and living room with bi fold doors that brings the beautiful decked area in. One of the bedrooms is to the ground floor with a bathroom and a door to a small rear courtyard making this area self contained for guests.
The rear deck area is great space ideal for entertaining guests and enjoy ||alfresco dining.
Viewing is highly recommended on this property.
The property consists of four bedrooms two bathrooms and an ensuite. There is a lovely spacious open plan kitchen diner, and living room with bi fold doors that brings the beautiful decked area in. One of the bedrooms is to the ground floor with a bathroom and a door to a small rear courtyard making this area self contained for guests.
The rear deck area is great space ideal for entertaining guests and enjoy ||alfresco dining.
Viewing is highly recommended on this property.
Property Features
- Chain free
- Stunning contempoaray home
- Open plan Lounge Kitchen Diner
- Ground floor Bedroom bathroom and access to rear courtyard
- Stunning decked garden to the front
- Three bedrooms to the first floor master with ensuite
- Family Bathroom
- Parking to the front
- Part Eco house
- Walking distance to town centre and transport links
